각종 건설공사 및 조선소 등에서 공사자재 운반 및 기계의 설치 등 기중기의 활용범위가 점차 확대되고 있어 취업문호가 넓고 향후 기중기 대여업(사업) 등 진로를 다변화 할 수 있는 잇점이 있는 장래 유망 직종임.
| 교육과목 | 학과교육 | 실기교육 | 비고 |
|---|---|---|---|
| 기중기 | 오전 10:00 ~ 12:00 저녁 19:00 ~ 21:00 |
연중 무휴가동 08:00~20:00 | 유압식 보유 기계식 보유 |
실기실습은 개인적으로 이론 합격 후 실기시험 대비반으로 정규 입학과정 및 시간제 과정이 있습니다.
카고 크레인, 스카이 등을 운전하면서 자격증 없는 분들 대상
기중기 작업의 대중화로 자격증 취득 후 기중기 운영사에 취업, 임대업이 가능 고소득 수입 가능
시험시간 : 6분(코스 운전 2분 30초, 훅 작업 3분 30초)
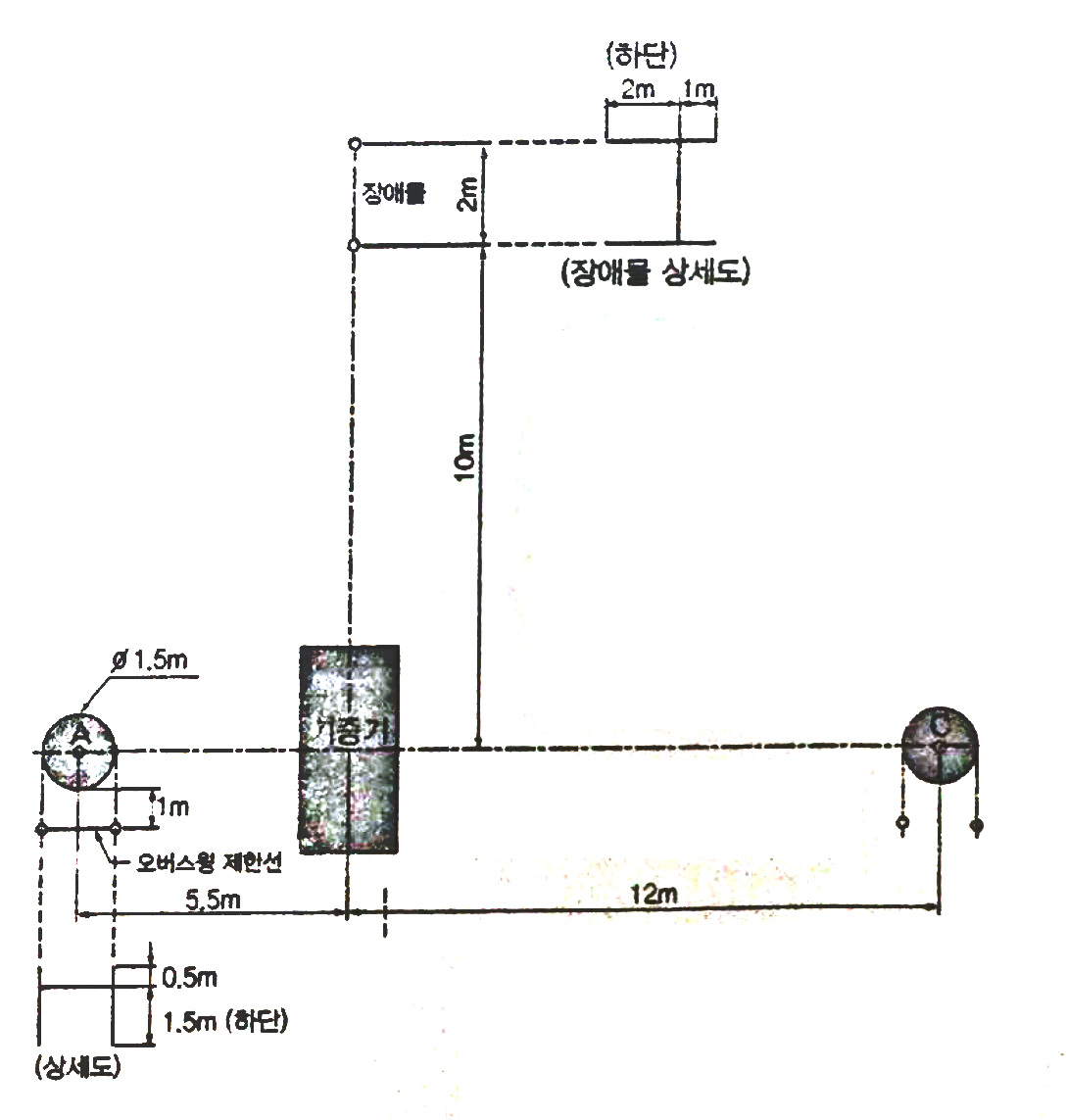
도면 A의 드럼을 들어서 장애물 사이를 통과하여 C안에 내렸다가 다시 드럼을 들어서 장애물 사이를
통과하여 A안에 내려놓습니다.
* 시험시작과 끝(도면 A)은 붐을 빼지 않은 상태임(단, 붐의 충격을 감안하여 덜 삽입함 길이 50cm 까지는 허용함)

